
Vorwort
Am 1. Oktober 1903 wurde die Bahn zwischen Neubeckum und Münster als späteste und letzte Strecke der WLE eröffnet. Bereits 1888 begannen Beckumer Industrielle den Bau einer schmalspurigen Kleinbahn von Beckum an den zukünftigen Kanal bei Hiltrup, südlich von Münster, zu betreiben. Der Kanal wurde erst 1899 eröffnet und über die Jahre wurde die WLE durch Beteiligung der Provinzialverwaltung für die Verbindung Neubeckum – Münster gewonnen.
Allerdings gestalteten sich die Verhandlungen für einen Anschluß an die Staatsbahn in Münster sehr schwierig. Einen Hauptbahnhof gab es in der Stadt erst seit dem 1. Oktober 1890. Dieser entstand durch die Zusammen- und Höherlegung der bisherigen Bahnhöfe aus der vor-Staatsbahnzeit. Am 21. Nov 1899 wurde die königliche Genehmigung für den Bau der WLE Strecke erteilt. Zu diesem Zeitpunkt waren die Verhandlungen über die Streckenführung und den Anschluß in Münster noch nicht abgeschlossen. Mit den Besitzern der benötigten Grundstücke, Mühlenbesitzer Kiesekamp, der Stadt Münster als Besitzerin der Hafenbahn und der Staatsbahn als Besitzerin der Grundstücke der ehemaligen Venloer Eisenbahn, konnten im Sommer 1902 die abschließenden Verträge unterzeichnet werden. Damit waren nicht alle offenen Fragen bezüglich des Wagenübergangs in Münster geklärt, aber die Bauarbeiten konnten vorangehen.
Nicht um die gesamte Strecke soll es in den Beiträgen mit dem Titel „Münster“ gehen, sondern um die letzten Kilometer bis in die Stadt, die daran liegenden Anschließer und Bahnhöfe.
Die letzten Kilometer
In diesem Teil wird über die Geschichte und Veränderung von der Stadtgrenze bis zum Kanal berichtet.

An der nord-östlichen Seite der Landstraße nach Albersloh entlang führte die Strecke der WLE. In einem eleganten S-Bogen wurde diese Straße und schließlich der Kanal überquert. Auf dem höhengleichen Überweg über die Landstraße zweigt der Anschluß „Faßfabrik“ in Richtung Stadt ab. Das Adressbuch der Stadt Münster von 1932 nennt an dieser Adresse: „Münstersche Faßfabrik GmbH, Sitz Bochum“. Auf dem Stadtplan ist das helle Gebäude aus dem Luftbild ebenfalls eingetragen. Am Bahnübergang zweigt der Königsweg ab. Der Anstieg zur Kanalbrücke beginnt etwa in der Mitte zwischen Bahnübergang und Kanal. Am Schattenwurf der Brücke ist die alte Bauform mit den niedrigeren Enden zu erkennen.

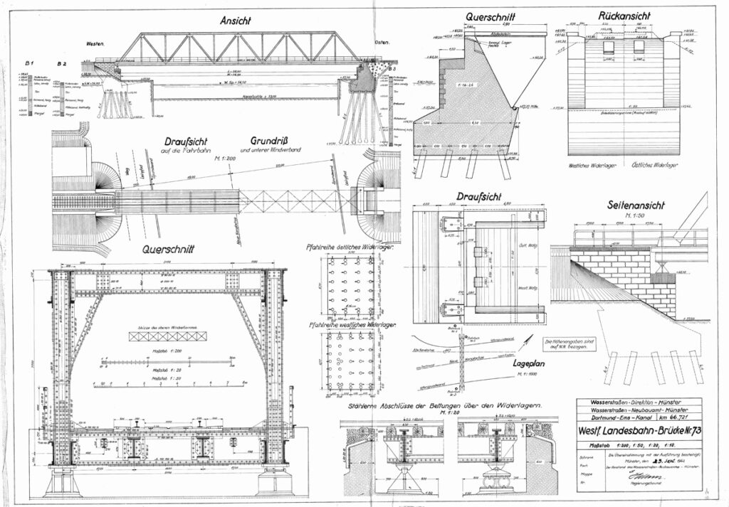
Für das Jahr 1937 sind einige Änderungen zu vermerken. Das helle Gebäude am Albersloher Weg Nr. 171 erhält einen Gleisanschluß, das Einwohnerbuch von 1940 nennt dazu die Firma Börger, Kohlengroßhandlung. Desweiteren stehen umfangreiche Baumaßnahmen in diesem Bereich an. Im Geschäftsbericht der WLE für das Jahr 1937 ist dazu zu lesen:



Am oberen Bildrand ist noch die Faßfabrik zu erkennen, aber auf dem ehemals freien Gelände sind die Bauten für das Luftkreiskommando schon weit fortgeschritten. Zum Flughafen auf der Loddenheide ist ein Anschlußgleis verlegt worden. Dieses wird in den offiziellen Unterlagen nur als Loddenheide II bezeichnet.


Da dieser Plan nicht genordet ist stimmen die „10 m südlich der bisherigen Brücke“ mit dem Geschäftsbericht überein. Im Geschäftsbericht 1938 werden die Bauarbeiten als durch „staatspolitisch wichtige Bauten“ verzögert beschrieben. Tatsächlich wurde die Kanalverlegung erst 1942 begonnen und ein Jahr später fertig gestellt.

Auf diesem Luftbild sind die beendeten Bauarbeiten gut zu erkennen. Die neue Kanalbrücke (Schattenwurf), die Strecke auf dem Damm mit drei Brücken, bei denen Straßen unterqueren und einer unbenutzten Brücke neben der Kanalbrücke für die zukünftige Umgehngsstraße. Die Trasse der alten Streckenführung ist am nördlichen Dammfuß zu erkennen. Ein Damm südlich der Strecke scheint für den Anschluß zum Flugplatz vorgesehen zu sein, ein Gleis ist aber nicht zu erkennen. Die Gebäude für den „Fliegerhorst“ sind fertggestellt.

Der Stadtplan von 1942 beschreibt auch den geplanten Verlauf der Umgehungsstraße. Bis zum Beginn der 1950er Jahre gibt es keine neuen Planungen.

Die Umgebung der Kanalbrücke 1952 (Foto: LWL_Medienzentrum)
.

Nach dem Krieg wurden die Planungen für einen Neubau der nun B 51 genannten Straße im Süden von Münster als Umgehungsstraße wieder aufgenommen. Allerdings sollte die Straße breiter und großzügiger trassiert werden, als um 1937 geplant.





Im Dezember 1958 erhält der Bahnhof Münster Ost Lichtsignale für die Einfahrt und die Ausfahrt nach Münster DB. Der Mast des Einfahrsignals ist hier im Bild.







Quellen
Sammlung Christoph Riegel
Archive WLE, Lippstadt und Soest
Kückmann, Beyer, Von Warstein bis ins Münsterland, DGEG Medien
Kuhne, Eisenbahndirektion Münster, Neddermeyer
llerbrock, Der Dortmund Ems Kanal, DGEG Medien
Schollmeiser/Thier, Münster auf alten Postkarten, Vom Aasee zum Hafen, Aschendorff Verlag
Diverse Netzfunde
Für die Luftaufnahme des Katasteramtes der Stadt Münster: Vervielfältigt mit Genehmigung des Vermessungs- und Katasteramtes der Stadt Münster vom 10.02.2026 Kontrollnummer: 6222-26-00434
Einwohnerbuch der Stadt Münster 1962 / 1963 Verlag des Einwohnerbuches der Stadt Münster Westf., 68. Jahrgang
Einwohnerbuch der Stadt Münster 1932, 1940, 1950; Digitalisat im Stadtarchiv Münster über Archive NRW